-
- MindEng® Smart Plant Operation System
- MindEng® Smart Construction Management System
- MindEng® Smart Safety Command Center
- MindEng® Total Quality Management System for EPC
- Digital Handover System
- Digital Twin System
- REFER AI Knowledge Management Platform
- Industrial Software Customization & Development
Intelligent Equipment Design
DDTS's equipment design engineers can join our clients' engineering design projects. By utilizing engineering drawing software such as AutoCAD, and equipment calculation software such as SW6, Compress, and PV Elite, we assist clients in completing drawings and designs for static equipment like vessels, heat exchangers, and towers. Additionally, we can collaborate with clients to produce inquiry drawings, mechanical design data sheets, and other procurement technical documents.
-
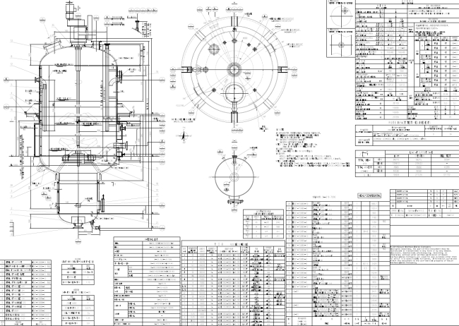
Typical Equipment - Jacketed Agitated Vessel
Nanjing, PV Elite
A project involving an agitated vessel with a jacket on the lower part of the cylindrical section. The vessel has an internal diameter of 5300mm, a total height of approximately 13.5m, a capacity of 195 cubic meters, and is constructed of C.S.+10276 composite plate. The design standard is ASME VIII-1, and the calculation software used is PV Elite.
-
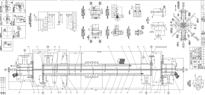
Typical Equipment - Special Material Heat Exchanger Design
Shanghai, PV Elite
A project involving a fixed tube sheet heat exchanger. The heat transfer area is 610m², and the tube material is C.S.+10276 composite plate. The tube sheet is a composite of three layers: C.S., Ti, and Zr. The design standard is ASME VIII-1, and the calculation software used is PV Elite.
-
Pressure Vessel - Tower Reinforcement Structure Strength and Stability Analysis
Nanjing-Ansys
A maintenance project involved replacing the severely corroded middle cylindrical section of a vessel. A reinforcement structure was temporarily installed to support the vessel during construction. Finite element analysis was used to verify the strength and stability of the reinforcement structure.
-
Shanghai-SW6 & PV Elite
We provide technical support and equipment design services for the water treatment industry, designing equipment such as fiberglass tanks, plastic tanks, pressure vessels, ladders, platforms, steel structures, and containerized equipment in accordance with standards like HG/T 20696-1999, JB/T 2932-1999, GB 150-2011, and ASME VIII.Div.1. We also provide technical support for equipment from filter suppliers.
Typical Equipment - Water Treatment Industry Equipment
-
Fouling Heat Exchanger Retrofit Case
Nanjing-Aspen EDR
Before the retrofit, this heat exchanger suffered from severe fouling, requiring frequent shutdowns for cleaning every 1-2 months, which significantly impacted normal production. By analyzing the causes of fouling, a retrofit solution was proposed. The heat exchanger's structure was modified, and the fouling phenomenon was significantly improved. The figure shows the structural differences before and after the retrofit.
-
Due to tube vibration, a heat exchanger in a certain unit experienced media leakage, leading to under-deposit corrosion and eventual equipment failure. The heat transfer tubes at the junction with the baffle were worn, and the outer surface of the tube bundle had extensive ulcer-like corrosion pits. Based on failure analysis, a retrofit solution was proposed to eliminate vibration and completely solve the heat transfer tube leakage problem. The heat transfer tube bundle was modified, and a drain port was added to prevent the concentration of harmful ions in the process water.
Heat Exchanger Leakage Failure Retrofit Case
Nanjing-Aspen EDR
-
ꁸ Top
-
ꂅ +86-25-83206633
-
ꀥ QR code

